2 d cad drawing of Living area LCD unit auto cad software
Description
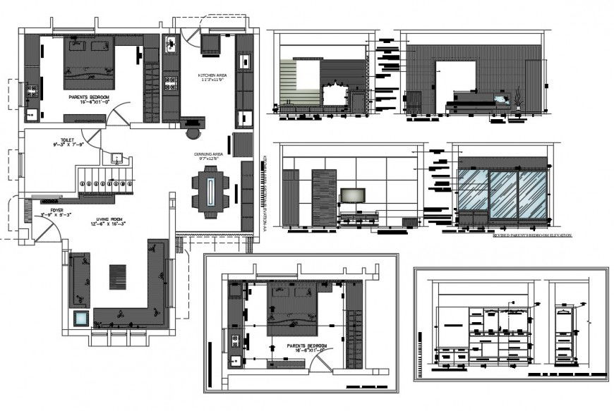
2d cad drawing of Living area lcd unit autocad software detailed with living room with foyer area and lcd tv and dinning area and crockery unit on upper cabinet and parents bedroom and section for in dividual been given in drawing.
Uploaded by:
Eiz
Luna

